Baerz & Co is een landelijk samenwerkingsverband van zorgvuldig geselecteerde boutique luxury makelaars. Samen vormen wij één netwerk, met één gedeeld aanbod. De woningen die u op onze website ziet, zijn afkomstig van alle aangesloten kantoren binnen Baerz & Co. Daardoor is niet ieder object rechtstreeks door ons kantoor in verkoop, maar door een gespecialiseerde collega binnen ons netwerk. Heeft u een woning gevonden die u aanspreekt en wilt u meer informatie? Dan brengen wij u graag persoonlijk in contact met de betreffende verkoopmakelaar, zodat u direct en zorgvuldig wordt begeleid.

AMSTERDAM
Minervaplein 36 5 - 1077 TT
Netherlands

€1,200,000
Living Area
110m2
Plot Size
N/A
Bedrooms
2

Description

Minervaplein 36-5, 1077 TT Amsterdam

Bright and spacious corner apartment (over 110 m²) in a prime location on the stately Minervaplein, offering spectacular unobstructed views over the square and the Zuidas skyline. The property is situated on the fifth floor of a well-maintained building with elevator access and features two bedrooms, with the possibility to easily create a third.

Location & Accessibility

The apartment is located in one of the most sought-after areas of Amsterdam South. In the immediate vicinity, you will find a wide range of high-end amenities, including Beethovenstraat, Cornelis Schuytstraat, and P.C. Hooftstraat. Culturally, the location is excellent, with the Concertgebouw and Museumplein—home to the Rijksmuseum and the Van Gogh Museum—just a short distance away.

For relaxation and sports, Vondelpark and Olympiaplein are nearby. The neighborhood is ????, green, and very family-friendly, with several renowned (international) schools in the area, including the British School.

Accessibility is excellent: the A10 ring road (exit S108) provides quick access out of the city, while public transport (tram lines 5 and 24, bus 15) and Amsterdam Zuid station are all within easy reach.

Layout

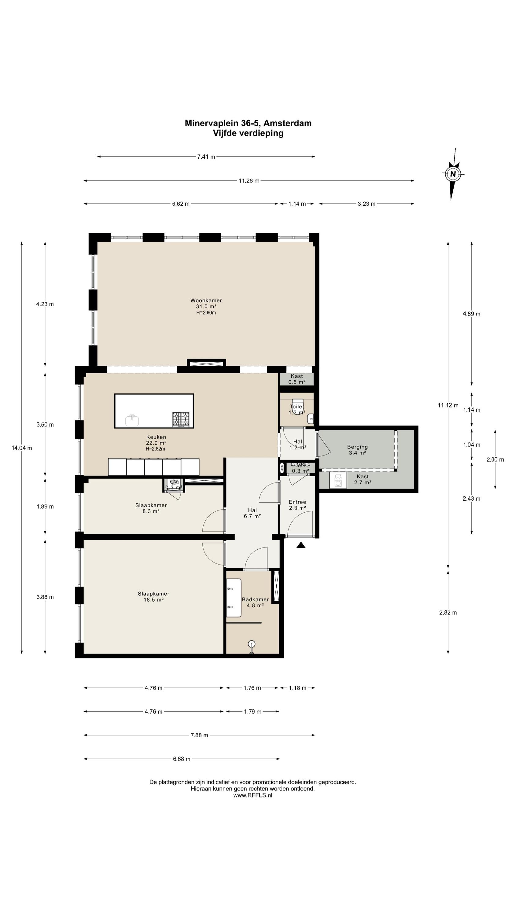
The well-maintained communal entrance provides access to the fifth floor via elevator or staircase.

Fifth floor
Entrance with wardrobe space leading into a central hallway that connects all rooms. The luxurious open-plan kitchen with cooking island forms the heart of the home and is equipped with high-quality Miele built-in appliances, including an induction hob, (combi) steam oven, convection oven with warming drawers, coffee machine, refrigerator, freezer, dishwasher, and wine climate cabinet. The island also features a comfortable bar seating area.

The adjacent living room fully benefits from its corner position and is exceptionally bright thanks to no fewer than eight windows. The unobstructed views over Minervaplein, Michelangelostraat, and the Zuidas skyline are impressive—especially atmospheric in the evening.

From the hallway, you can also access the internal storage room (currently used as a walk-in closet), a separate toilet, and the two bedrooms. The first bedroom is currently used as a child’s room but is also ideal as a home office or study. The spacious master bedroom (approx. 20 m²) accommodates a large bed and ample wardrobe space.

The well-appointed bathroom features a walk-in rain shower, double vanity unit, and underfloor heating.

The apartment is finished with a beautiful wooden herringbone floor. All window frames have been renewed in hardwood with HR++ double glazing, while preserving and modernizing the characteristic sliding window system.

Key Features
- Apartment right of over 110 m² (measured in accordance with NEN2580 standards)
- Two bedrooms, with easy possibility to create a third
- Corner apartment with exceptional views over Minervaplein and the Zuidas
- Shared rooftop terrace
- Energy label D
- All window frames renewed in hardwood with HR++ glazing, maintaining the characteristic sliding system
- Well-insulated ceilings and floors
- Electrical system and piping fully renewed
- Elevator present
- Continuous leasehold: current period runs until May 15, 2055
- Annual ground rent €1,453.68 (indexed annually)
- Transition to perpetual leasehold (AB 2016) notarized; ground rent from May 16, 2055: €2,634.45 excluding inflation
- Possibility to apply for 2 parking permits
- Professionally managed HOA, long-term maintenance plan available
- Service charges €401.37 per month; additional €89.25 advance heating costs (mostly refunded annually due to private central heating system)
- Delivery in consultation

This information has been compiled with the utmost care. However, no liability is accepted for any incompleteness, inaccuracies, or otherwise, nor for the consequences thereof. All measurements and surfaces provided are indicative. The buyer has a duty to investigate all matters that are important to them. With regard to this property, the broker acts as the advisor to the seller. We recommend engaging a qualified (NVM) real estate agent to guide you through the purchasing process. Should you have specific requirements regarding the property, we advise you to make these known in good time to your purchasing agent and to (have them) carry out independent research. If you do not engage an expert representative, the law assumes you are sufficiently knowledgeable to oversee all matters of importance. The NVM conditions apply.

Features

Transfer of ownership
Asking Price
€ 1.200.000
Status
beschikbaar
Acceptance
in overleg
Construction
Kind of house
Bovenwoning
Building type
appartement
Construction period
1957
Roof type
plat dak
Bedrooms
2
Bathrooms
1
Surface Areas And Volume
Living Area
110 m2
Other indoor space
0 m2
Volume in cubic meters
371 m3
Facilities
Mechanische ventilatie
Tv kabel
Lift
Aan rustige weg
In woonwijk
Vrij uitzicht
Baerz & Co Property Brochure

Brochure

Videos

Video Minervaplein 36 5

Floor Plans

Bijzonder Wonen Makelaardij

Heilige Geeststraat, 11
5301CP Zaltbommel

info@bijzonderwonen.com
+31 41 868 00 50

www.bijzonderwonen.com

Information / Viewing request

Jeanette van Haaften profile image
Jeanette van Haaften
Real Estate Agent

Buying a Luxury Property in Amsterdam

Amsterdam offers a cosmopolitan lifestyle defined by heritage, connectivity, and discreet luxury. Residents benefit from a robust international community, curated services, and vibrant culture. The city’s enduring appeal lies in its blend of history, sophistication, and progressive spirit.