Kalverstraat 218 E in Amsterdam
Call now to schedule a viewing of this bright and surprisingly quiet 2-bedroom apartment of approx. 72 m², located on the second floor of a modern and well-maintained building (1997) with lift and separate storage room.
Although the apartment is literally located in the heart of Amsterdam, the home offers surprisingly much tranquillity due to the modern construction quality.
Thanks to the excellent insulation, you live here comfortably, quietly and energy-efficiently, while everything that makes the city so unique takes place right outside your front door.
Layout
Through the central entrance on the Kalverstraat, you enter the neat communal hall. With the lift you easily reach the second floor, where a spacious terrace is located directly in front of the door – an ideal spot for a morning coffee or a pleasant place to sit at the end of the day.
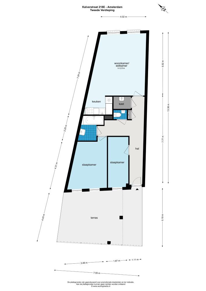
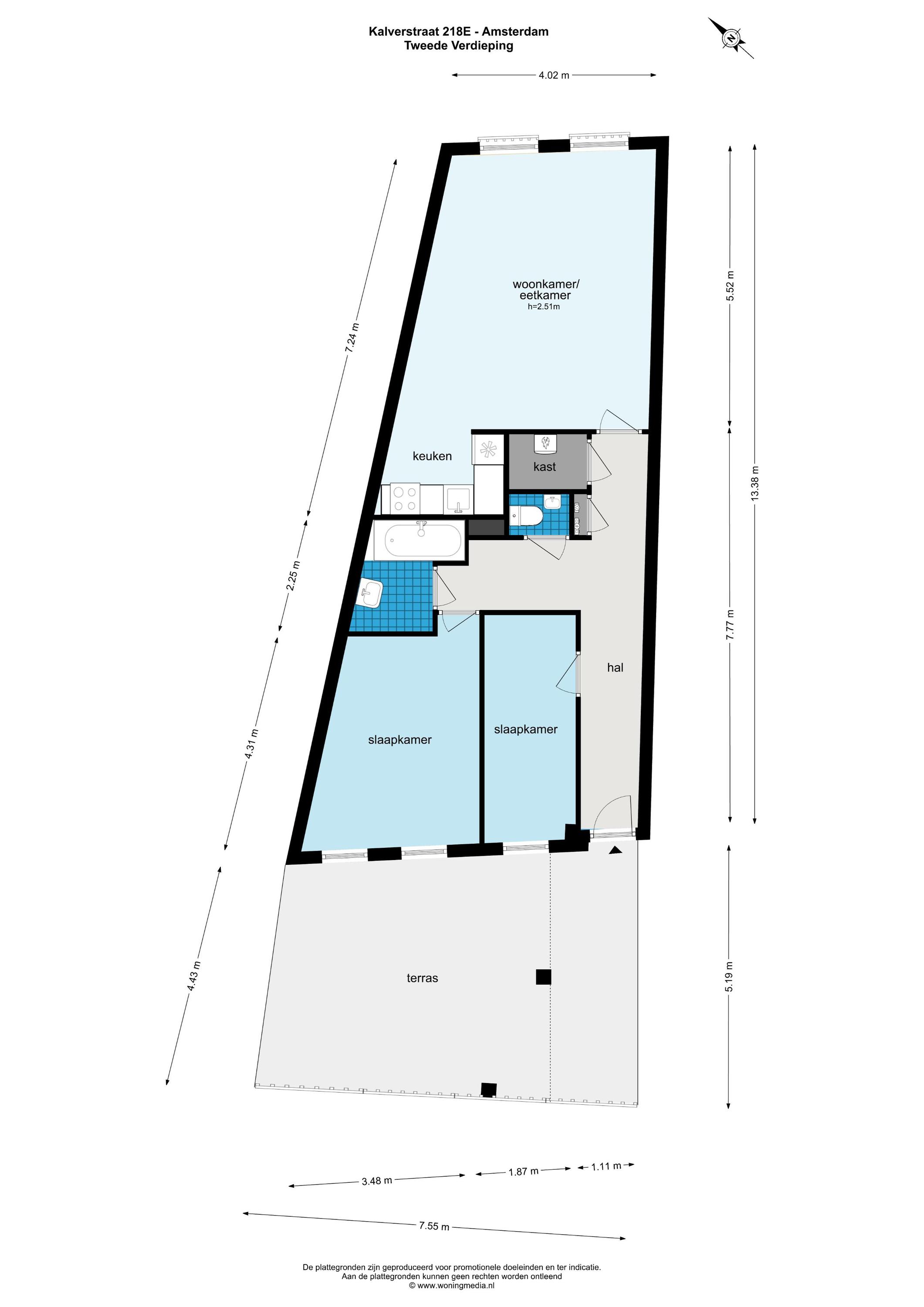
The entrance of the apartment opens into a spacious hall that gives access to all rooms. On the terrace side are two well-sized bedrooms, both suitable as sleeping room, office or guest room. The bathroom is equipped with a bathtub and a modern washbasin unit. In addition, there is a separate toilet and a practical storage space with connections for washing machine and dryer, plus the central heating combi boiler.
At the front is the bright living room with open kitchen. Thanks to the two French doors with French balconies, you enjoy a lively view of the Kalverstraat while daylight floods in. The kitchen is fitted with various built-in appliances and offers sufficient work and cupboard space. The home is finished with a neat oak parquet floor, which provides a warm appearance.
Location & accessibility
The location is truly ideal: between Rokin, Singel and Heiligeweg, amidst shops, boutiques, cafés and restaurants. Facilities such as supermarkets, gyms, cultural institutions and entertainment venues are also within walking distance.
For those who travel regularly: tram and metro stops, including the North/South line, are around the corner. By car, you can quickly reach the A10 ring road via the IJ tunnel or Piet Hein tunnel. Despite the vibrant surroundings, you live in a modern, quiet apartment with all comforts within easy reach.
Details
Living area approx. 72 m²
Year of construction 1997
Two bedrooms
Modern and neat finish
Separate storage room of approx. 7 m² in the basement
Lift present
Comfortable and well-insulated apartment
Located in an absolute prime location in the city centre