Baerz & Co is een landelijk samenwerkingsverband van zorgvuldig geselecteerde boutique luxury makelaars. Samen vormen wij één netwerk, met één gedeeld aanbod. De woningen die u op onze website ziet, zijn afkomstig van alle aangesloten kantoren binnen Baerz & Co. Daardoor is niet ieder object rechtstreeks door ons kantoor in verkoop, maar door een gespecialiseerde collega binnen ons netwerk. Heeft u een woning gevonden die u aanspreekt en wilt u meer informatie? Dan brengen wij u graag persoonlijk in contact met de betreffende verkoopmakelaar, zodat u direct en zorgvuldig wordt begeleid.

AMSTELVEEN
Texelstraat 110 - 1181 ES
Netherlands

Jeanette van Haaften profile image
Jeanette van Haaften
Real Estate Agent
€1,995,000 k.k.
Living Area
224m2
Plot Size
N/A
Bedrooms
5

Description

Texelstraat 110, 1181 ES Amstelveen

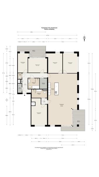
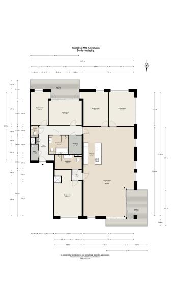
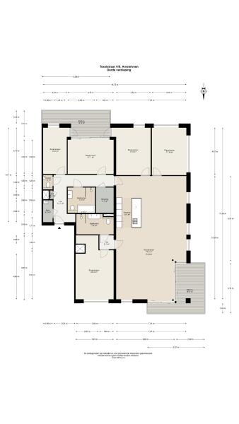
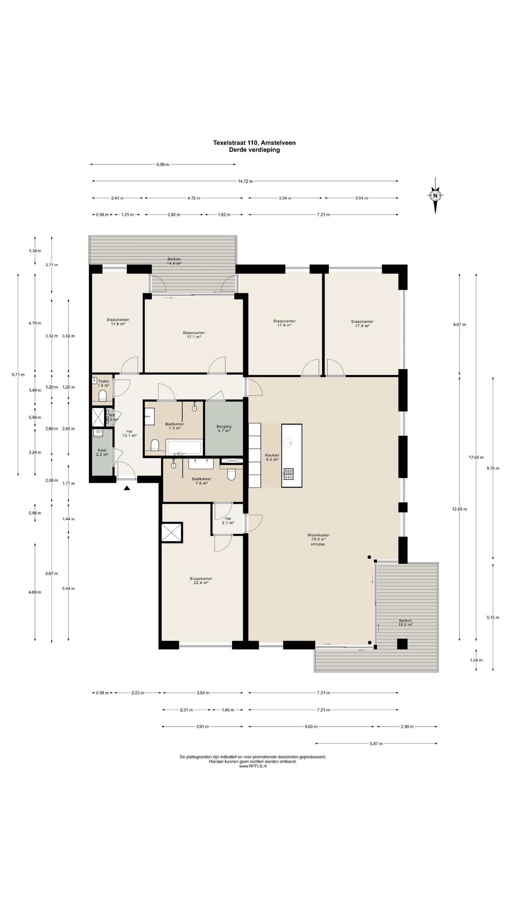
Located at Texelstraat 110 in Amstelveen, within the luxurious Forest Hill Luxury Apartments complex, you’ll find this stylish and spacious corner apartment of approximately 224 m², featuring two sunny terraces totaling around 33 m². Situated on the second floor, the residence combines luxury, comfort, and space in a unique location on the edge of the Amsterdam Forest (Amsterdamse Bos) and near the Stadshart Amstelveen city center.

The impressive living room of about 120 m² includes a modern Siematic kitchen. Large sliding doors connect the living area to the terraces, creating a beautiful indoor-outdoor atmosphere. Furthermore, the apartment offers five spacious bedrooms, two luxurious bathrooms, and, thanks to its corner position, enjoys exceptional natural light.
Multiple parking spaces/boxes are available for purchase in the underground garage. This is an exceptional apartment for those seeking a spacious and comfortable home in a prime Amstelveen location.

FOREST HILL LUXURY APARTMENTS

Forest Hill Luxury Apartments in Amstelveen offers a unique opportunity to move into a completely new, high-end apartment immediately. The 25 exclusive residences combine luxury, comfort, and elegance with a peaceful setting close to all urban amenities.

The spacious apartments feature large windows, a Siematic kitchen with Siemens appliances, and luxurious bathroom fittings. Residents enjoy modern conveniences such as an underground parking garage with EV charging points and a lift to the residential floors. Inspired by the Japanese nature therapy Shinrin-Yoku (forest bathing), the complex exudes calmness and harmony with nature.

Thanks to its central location between Stadshart Amstelveen, Gelderlandplein, and the Amsterdamse Bos, residents experience the best of both worlds: serene living quality with all urban luxuries within easy reach.

Location and Accessibility

Forest Hill Luxury Apartments is located in the popular and green Randwijck district of Amstelveen—one of the most sought-after residential areas in the region. Here you live quietly, surrounded by nature, yet close to every city convenience. In the immediate vicinity, you’ll find several schools, including the Amity International School and Brede School Roelof Venema, as well as multiple daycare centers, supermarkets, and the Kostverlorenhof shopping center for daily groceries.

For those seeking more luxury, there’s plenty of choice: both Stadshart Amstelveen and Gelderlandplein in Amsterdam are just a few minutes away. These shopping centers are known for their wide selection of high-quality stores, specialty shops, delicatessens, and cozy cafés—from De Bijenkorf to Starbucks and Rituals.

If you’re in the mood for culture, the Cobra Museum is well worth a visit. The vast Amsterdamse Bos is just around the corner, offering countless walking and cycling routes, sports facilities, theaters, festivals, and charming eateries. For relaxation, Spa & Wellness Zuiver by the Bosbaan provides an oasis of calm, while Restaurant Loetje aan de Amstel is the perfect place to enjoy good food with views over the water.

The location of the apartment is exceptionally central and easily accessible. By car, you can reach the A9, A10, and A2 motorways within minutes, connecting you quickly to Amsterdam, Schiphol, or the rest of the Randstad. Public transport connections are excellent as well, with bus and tram lines to Amsterdam-Zuid, the Zuidas, and Amstelveen Stadshart just a short walk away. Cyclists can easily reach both the Zuidas business district and Amstelveen city center, making commuting fast and efficient. After a busy day, it’s wonderful to come home to this quiet, green area where city living and nature blend effortlessly.

Layout

You can comfortably reach the apartment by lift. From the well-maintained entrance hall, you step into a stylish and bright home. The long central hallway leads to double French doors opening into the spacious living room, where the open layout, abundant light, and refined finishes immediately stand out.

The modern kitchen with cooking island forms the heart of the living space and features custom-made wooden cabinets, a natural stone countertop, and various built-in appliances with integrated ventilation. The bar area invites socializing, making the kitchen an ideal place for both cooking and entertaining. Large sliding doors provide access to the sunny corner terrace, where you can enjoy open views on two sides and create a perfect indoor-outdoor feeling on warm days.

The apartment includes five spacious bedrooms, four of which are located on the quiet rear side—two with direct access to the second terrace. Both bathrooms are equipped with a walk-in shower, vanity unit, toilet, and one includes a bathtub. Additionally, there is a practical indoor storage/laundry room. Thanks to the favorable corner position, the apartment enjoys exceptional brightness and a pleasant sense of space and tranquility.

Parking Options: You have the opportunity to purchase one or more parking spaces in the underground garage:
- Asking price parking space: €62,500 (buyer’s costs) per space
- Asking price parking box: €82,500 (buyer’s costs) per box

Key Features
- Apartment size: 224 m² (NEN-2580 report available)
- Five bedrooms
- Spacious living area of 120 m²
- Two internal storage rooms
- Two large terraces
- Near the Amsterdamse Bos
- Energy label A++
- Underfloor heating
- HR++ glass
- Parking space(s) for sale: €62,500 or box for €82,500 (buyer’s costs)
- Service costs (HOA): €396.84 per month
- Available immediately

We have gathered this information with the greatest of possible care. However, we will not accept any liability for any incompleteness, inaccuracy or any other matter nor for the consequences of such. All measurements and surfaces stated are indicative. The purchaser has a duty to investigate any matter that may be of importance to him or her. The estate agent is the adviser to the seller with regard to this residence. We advise you to engage an expert (NVM registered) estate agent who will guide you through the purchasing process. Should you have any specific desires with regard to the residence, we advise you to make these known as soon as possible to your purchasing estate agent and have an independent investigation carried out into such matters. If you do not engage an expert, you will be deemed as considering yourself to be sufficiently expert to be- to oversee all matters that could be important. The NVM conditions apply.

Features

Solar panels
Transfer of ownership
Asking Price
€ 1.995.000 k.k.
Status
beschikbaar
Acceptance
direct
Construction
Kind of house
Tussenverdieping
Building type
appartement
Construction period
2022
Energy rating
A++
Roof type
plat dak
Bedrooms
5
Bathrooms
2
Surface Areas And Volume
Living Area
224 m2
Other indoor space
0 m2
Exterior space attached to the buildinge
33 m2
External storage space
7 m2
Volume in cubic meters
718 m3
Facilities
Mechanische ventilatie
Tv kabel
Schuifpui
Glasvezel kabel
Zonnepanelen
Aan bosrand
In woonwijk
Vrij uitzicht
Open ligging
Baerz & Co Property Brochure

Brochure

Videos

Floor Plans

Bijzonder Wonen Makelaardij

Heilige Geeststraat, 11
5301CP Zaltbommel

info@bijzonderwonen.com
+31 41 868 00 50

www.bijzonderwonen.com

Information / Viewing request

Jeanette van Haaften profile image
Jeanette van Haaften
Real Estate Agent

Buying a Luxury Property in Amstelveen

Amstelveen offers refined residences, a cosmopolitan atmosphere, and exceptional connectivity. The blend of green areas, international amenities, and community sophistication continues to captivate global buyers and families seeking both privacy and vibrant urban connections.