Ons kantoor is lid van Baerz & Co Luxury Homes; een internationaal platform dat exclusieve woningmakelaars met elkaar verbindt. Neem contact op met ons secretariaat voor meer informatie over het landelijke aanbod, waarvan u hieronder een selectie kunt bekijken.

Appartement for sale in ALKMAAR

ALKMAAR Schermerweg 92 A 2 - 1821 BJ The Netherlands


Romy van de Leygraaf profile image
Romy van de Leygraaf
Real Estate Agent
+31 72 51 14 318
romy@leygraafmakelaars.nl

Leygraaf Makelaars
Kennemerstraatweg 67
1814 GC Alkmaar
NETHERLANDS
+31 725114318
www.leygraafmakelaars.nl
informatie@leygraafmakelaars.nl

Living area
140m2
Plot size
N/A
Bedrooms
3

Description

APPARTEMENTEN JAAGPAD ALKMAAR – DE BOUW IS GESTART!

BOUWNUMMER 2.00.10 = Schermerweg 92 A 2 1821 BJ ALKMAAR

Heeft u interesse in deze woning? Bekijk dan ook de vergelijkbare bouwnummers via de woningzoeker op de projectwebsite:
2.00.11
3.00.09

De bouw van het Jaagpad is gestart! Dit prachtige nieuwbouwproject aan het Noordhollandsch Kanaal krijgt steeds meer vorm. De oplevering van de eerste appartementen staat gepland voor eind 2026 – begin 2027. Hier woon je straks op een unieke locatie, op steenworp afstand van het bruisende centrum van Alkmaar.

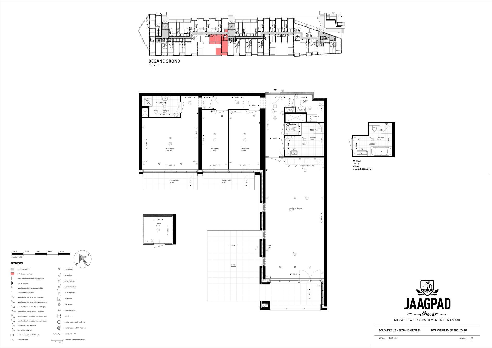
BOUWNUMMER 2.00.10
Droom jij van een modern en energiezuinig appartement op een toplocatie? Dan is dit jouw kans! Dit gloednieuwe 3-slaapkamerappartement in het Jaagpad Nieuwbouwproject combineert stijl, comfort en een prachtig uitzicht over het water. De royale woonkamer met open keuken heeft veel natuurlijk licht dankzij de grote raampartijen aan twee kanten. Vanuit de woonkamer stap je direct het fijne terras op die veel verbinding heeft met het water.
Het appartement beschikt over drie ruime slaapkamers en maar liefst twee stijlvolle badkamers. Extra opslag? Geen probleem! Op de verdieping van het appartement bevindt zich een handige berging.

Daarnaast is dit appartement volledig gasloos en uitgerust met energiezuinige vloerverwarming, waardoor je geniet van een duurzaam en aangenaam woonklimaat.

LOCATIE
Alkmaar, bekend als dé kaasstad van Nederland, biedt veel meer dan historische charme. Het sfeervolle centrum heeft gezellige winkelstraatjes, een breed scala aan horecagelegenheden en een levendige uitgaansscene. Bovendien ligt Alkmaar ideaal ten opzichte van Haarlem en Amsterdam, met uitstekende verbindingen zowel per auto als met het openbaar vervoer. Vanaf Jaagpad sta je binnen 15 minuten wandelen op het iconische Waagplein, en met de fiets ben je er zelfs in 5 minuten.

Bijzonderheden:
- De bouw is gestart
- Oplevering gepland eind 2026 – begin 2027
- Volledig gasloos en voorzien van energiezuinige vloerverwarming
- Huren van een parkeerplaats voor €90 per maand in de onderliggende parkeergarage

Interesse? Schrijf je in!
Ben je geïnteresseerd in een appartement aan Jaagpad? Bekijk de woningzoeker en verkooptekeningen op de projectwebsite en schrijf je vandaag nog in of neem direct contact met een van de makelaars. (www.jaagpad-alkmaar. nl)

Let op: De foto’s in de aanmelding zijn ter impressie en afkomstig van de modelwoning in het huurgebouw van het Jaagpad. Hoewel deze een goed beeld geven van de afwerking en sfeer, kunnen hier geen rechten aan worden ontleend. Tevens zijn de gebruikte afbeeldingen en mediabestanden dienen uitsluitend ter illustratie. Hieraan kunnen geen rechten worden ontleend, en de feitelijke indeling, inrichting of staat van de appartementen kan afwijken van de getoonde beelden.

Features

Transfer of ownership
price
€ 830.000 v.o.n.
Status
verkocht onder voorbehoud
Acceptance
in overleg
Construction
Kind of house
Portiekflat
Building type
appartement
Construction period
2026
Energy rating
A_P
Bedrooms
3
Bathrooms
0
Surface Areas And Volume
Living area
140 m2
Other indoor space
4 m2
Exterior space attached to the building
52 m2
External storage space
5 m2
Volume in cubic meters
422 m3
facilities
Mechanische ventilatie
Tv kabel
Lift
Zonnepanelen
Aan water
Aan vaarwater
Baerz & Co Property Brochure

Brochure

Information / Viewing request

Videos

Photos

Floor Plans