Ons kantoor is lid van Baerz & Co Luxury Homes; een internationaal platform dat exclusieve woningmakelaars met elkaar verbindt. Neem contact op met ons secretariaat voor meer informatie over het landelijke aanbod, waarvan u hieronder een selectie kunt bekijken.

VALKENBURG
Voorschoterweg 71 B - 2235 SG
Die Niederlande

Frits Wilbrink profile image
Frits Wilbrink
Real estate agent
€1,175,000 k.k.
Wohnbereich
162m2
Grundstücksgröße
655m2
Schlafzimmer
3

Beschreibung

Diese Doppelhaushälfte in Valkenburg liegt direkt am Wasser und bietet ruhiges Wohnen am Ufer, mitten im Herzen der Randstad. Das Anwesen umfasst 162 m² elegant gestalteten Wohnraum auf einem 655 m² großen Grundstück, vereint durch einen architektonisch gestalteten Garten und einen zehn Meter langen privaten Bootssteg an der Alten Rijn mit komfortablem Zugang Richtung Leiden und den Kagerplassen. Aus dem sonnigen Garten gelangen Sie direkt ans Wasser, Bootfahren wird Teil des Alltags, und der Valkenburger See ist fußläufig erreichbar.

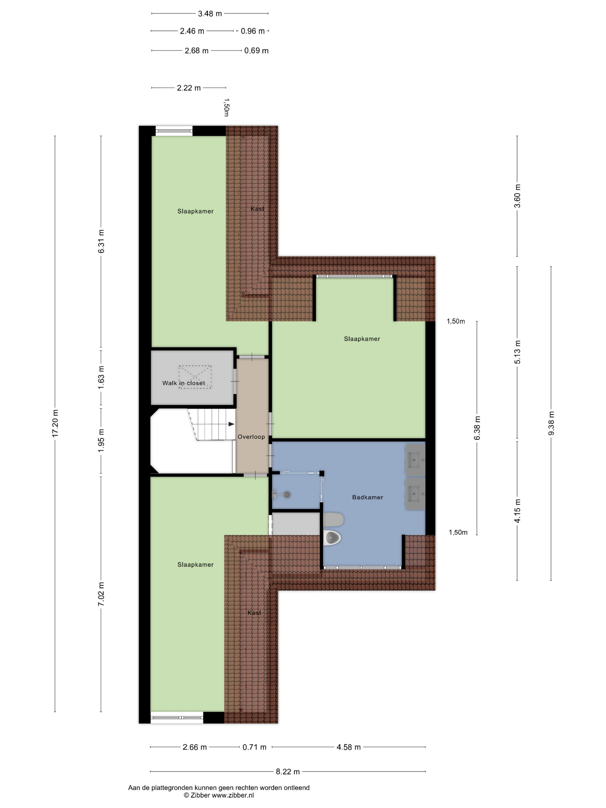
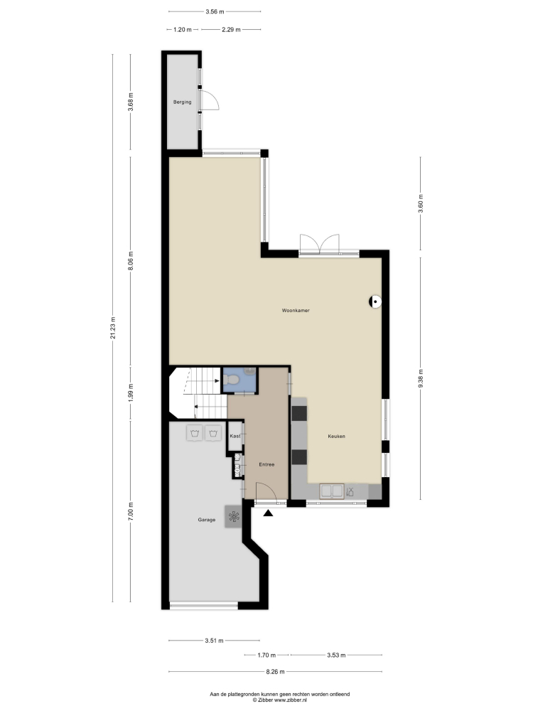
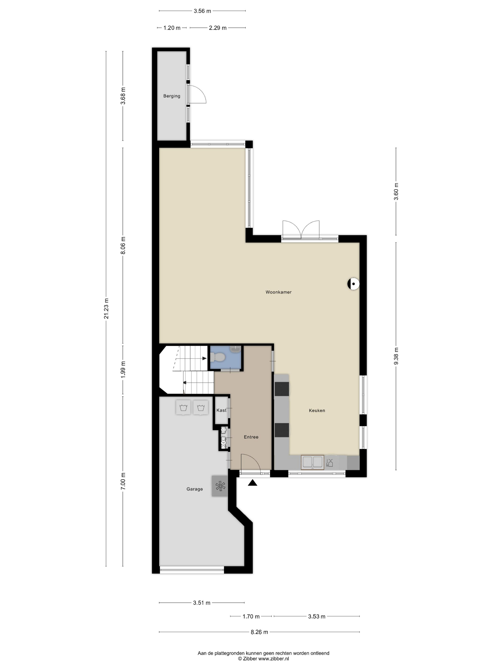
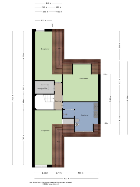
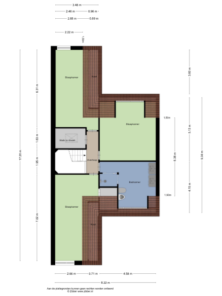
Innen empfängt Sie die Villa mit einer großzügigen Diele, die in ein lichtdurchflutetes Wohnzimmer führt. Große Fensterfronten und französische Türen lassen den Blick auf Garten und Wasser eindrucksvoll wirken, ergänzt durch einen Gaskamin und Fußbodenheizung im gesamten Erdgeschoss. Die Küche bietet Raum zum Kochen und für Begegnungen, während die angeschlossene Garage mit elektrischem Tor und eigenen Anschlüssen ausgestattet ist. Im Obergeschoss befinden sich drei Schlafzimmer sowie ein luxuriöses Bad mit Fußbodenheizung und begehbarer Dusche aus 2022, die den privaten Bereich abrunden. Ein begehbarer Kleiderschrank und ein großzügiger Stauraum im Dachgeschoss sorgen für zusätzliche Flexibilität, zudem lässt sich problemlos ein viertes Schlafzimmer realisieren.

Die angelegte Vorgarten- und Rückgartenfläche bietet sonnige und schattige Bereiche, unterstützt von automatischer Beregnungsanlage, einem Schuppen direkt am Wasser und der Privatsphäre eigener Parkplätze für drei Autos. Mit Energieeffizienzklasse B, HR++ Verglasung und gesicherten Ausstattungen verbindet dieses Haus Komfort mit Sicherheit. Diese exklusive Villa zum Verkauf in Valkenburg liegt nur wenige Minuten vom Zentrum Leidens entfernt, nahe internationaler Schulen, sowie weniger als zwanzig Minuten von Amsterdam, Schiphol und Den Haag, perfekt vernetzt für Familien- und Berufsleben. Hier bestimmen Raum, Licht und die leise Präsenz des Wassers das luxuriöse Wohnen.

Entdecken Sie Falkenburg mit Baerz, Ihrem vertrauenswürdigen persönlichen Immobilienfinder und Berater

Der Wert erfahrener, ortskundiger Berater liegt in Valkenburgs vielfältiger Bausubstanz und diskreten Off-Market-Chancen. Experten bieten Einblicke in Geschichte und Potenzial der Lagen, verschaffen Zugang zu unveröffentlichtem Angebot und sichern mit Verhandlungsgeschick und Netzwerken, etwa zu Denkmalschutzarchitekten, einen klaren Vorteil.

Häufige Fallstricke vermeiden

Internationale Käufer verlieren oft wertvolle Zeit, weil sie sich durch doppelte, veraltete oder irreführende Online-Angebote kämpfen müssen – besonders da fast 30% aller Luxusimmobilien überhaupt nicht auf dem Markt erscheinen.
Makler des Verkäufers vertreten die Interessen des Verkäufers, nicht Ihre, und schon eine einfache Anfrage kann dazu führen, dass eine Agentur Sie ohne Ihre Zustimmung als deren „Kunden“ registriert.
Mit Baerz Property Finders & Advisors umgehen Sie all diese Fallstricke vollständig.
Wir handeln ausschließlich in Ihrem Interesse, bieten unabhängige Vertretung, transparente Beratung und Zugang zu jedem verfügbaren Objekt – einschließlich privater und off-market Angebote, die andere nie zu sehen bekommen.

Neugierig, wie Sie Ihren eigenen Personal Property Advisor sichern können? Kontaktieren Sie uns, um zu erfahren, wie wir Ihre Interessen vertreten und Ihnen den gesamten Markt öffnen können.

Merkmale

Alarm system
Eigentumsübertragung
Verkaufspreis
€ 1.175.000 k.k.
Status
beschikbaar
Annahme
in overleg
Bau
Art des Hauses
Villa
Gebäudetyp
halfvrijstaande woning
Bauzeitraum
1992
Energieausweis
B
Dachtyp
samengesteld dak
Schlafzimmer
3
Badezimmer
1
Flächen und Volumen
Wohnbereich
162 m2
Andere Innenräume
43 m2
Volumen in Kubikmetern
760 m3
Grundstücksgröße
655 m2
Einrichtungen
Mechanische ventilatie
Alarminstallatie
Tv kabel
Buitenzonwering
Rookkanaal
Aan water
Beschutte ligging
Buiten bebouwde kom
Aan vaarwater
Baerz & Co Property Brochure

Broschüre

Videos

Grundrisse

Wilbrink & v.d. Vlugt Makelaars

Heereweg 231
2161 BG Lisse

info@wilbrinkvandervlugt.nl
+31 252 41 90 49

www.onsaanbod.nl

Information / Besichtigungsanfrage

Frits Wilbrink profile image
Frits Wilbrink
Real estate agent