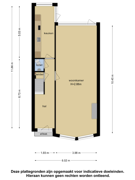
Dieses Familienhaus in Rotterdam verbindet architektonisches Erbe mit dem seltenen Privileg eines direkten Wasserzugangs auf einem 226 m² großen Privatgrundstück. Das 1927 erbaute Haus bewahrt seine ursprüngliche Integrität und bietet etwa 119 m² Wohnfläche, gemessen nach NEN-2580. Die klassischen Linien der Immobilie werden durch Modernisierungen wie teilweise doppelt verglaste Fenster und eine 2021 installierte Zentralheizung ergänzt.
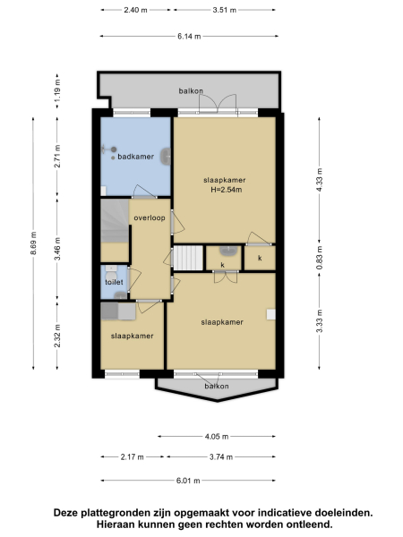
Vier Schlafzimmer und ein Badezimmer bieten ausgewogene Proportionen für Entspannung und Aktivität. Die Möglichkeit, eine Sloep im eigenen Garten anzulegen, verleiht diesem Anwesen einen einzigartigen Charakter und ermöglicht ein Lebensgefühl, das unmittelbar mit dem Wasser verbunden ist. Die verbleibenden 29 m² Innenfläche, verteilt auf Keller und Dachgeschoss, bieten Raum zur weiteren Gestaltung; durch eine moderate Anpassung der Dachgauben kann zusätzlicher Wohnraum geschaffen werden. Die zum Gebäude gehörende Außenfläche von ca. 10 m² erweitert das Wohnerlebnis ins Freie – ein ruhiger Rückzugsort.
Ausstattungsmerkmale umfassen TV-Anschluss, Außenjalousien, Energieeffizienzklasse D sowie die diskrete Sicherheit des Privateigentums. Eine Liegenschaft von Beständigkeit und Potenzial, geschaffen für jene, die Authentizität und den Rhythmus des Lebens an den Rotterdamer Grachten schätzen.
Entdecken Sie Rotterdam mit Baerz, Ihrem vertrauenswürdigen persönlichen Immobilienfinder und Berater
Die Navigation auf dem dynamischen Rotterdamer Immobilienmarkt erfordert erfahrene Berater, die lokale Expertise mit internationalem Kundenservice verbinden. Diskreter Zugang zu Off-Market-Angeboten, gezielte Verhandlungsstrategien und vertieftes regulatorisches Wissen ermöglichen es anspruchsvollen Käufern und Verkäufern, kluge Entscheidungen zu treffen. Diese Kompetenz optimiert Renditechancen und sichert Interessen über alle Phasen hinweg.
Häufige Fallstricke vermeiden
Internationale Käufer verlieren oft wertvolle Zeit, weil sie sich durch doppelte, veraltete oder irreführende Online-Angebote kämpfen müssen – besonders da fast 30% aller Luxusimmobilien überhaupt nicht auf dem Markt erscheinen.
Makler des Verkäufers vertreten die Interessen des Verkäufers, nicht Ihre, und schon eine einfache Anfrage kann dazu führen, dass eine Agentur Sie ohne Ihre Zustimmung als deren „Kunden“ registriert.
Mit Baerz Property Finders & Advisors umgehen Sie all diese Fallstricke vollständig.
Wir handeln ausschließlich in Ihrem Interesse, bieten unabhängige Vertretung, transparente Beratung und Zugang zu jedem verfügbaren Objekt – einschließlich privater und off-market Angebote, die andere nie zu sehen bekommen.
Neugierig, wie Sie Ihren eigenen Personal Property Advisor sichern können? Kontaktieren Sie uns, um zu erfahren, wie wir Ihre Interessen vertreten und Ihnen den gesamten Markt öffnen können.