Ons kantoor is lid van Baerz & Co Luxury Homes; een internationaal platform dat exclusieve woningmakelaars met elkaar verbindt. Neem contact op met ons secretariaat voor meer informatie over het landelijke aanbod, waarvan u hieronder een selectie kunt bekijken.

KRIMPEN AAN DEN IJSSEL
Aquamarijn 2 - 2924 VR
Die Niederlande

Xandra Bek profile image
Xandra Bek
Register makelaar - taxateur
€1,580,000 k.k.
Wohnbereich
618m2
Grundstücksgröße
677m2
Schlafzimmer
9

Beschreibung

Villa Krimpen aan den IJssel definiert exklusives Wohnen am Wasser neu und bietet üppige 618 m² Wohnfläche direkt an der Hollandse IJssel. Diese Villa zeichnet sich durch seltene Großzügigkeit und Weite aus — belegt durch Panoramablicke auf den Fluss von den auf mehreren Ebenen angelegten Terrassen, die stets einen Sonnen- oder Schattenplatz bereithalten.

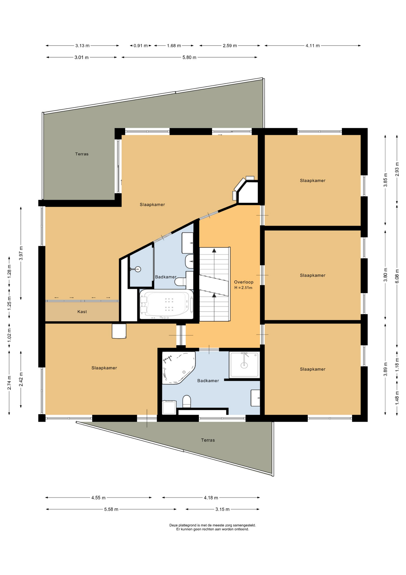
Auf vier Ebenen entfaltet sich das Anwesen mit klarer Struktur und Großzügigkeit. Acht Schlafzimmer und drei Badezimmer ermöglichen ein vielseitiges Familienleben oder diskretes Homeoffice. Der Hauptwohnbereich, geprägt von großen Fenstern und einem Kamin, geht nahtlos in die angrenzende Terrasse über und schafft so einen ständigen Dialog zwischen Innenraum und Flusslandschaft. Die angrenzende Küche ist großzügig und einladend gestaltet – ideal für alltägliche Rituale und gesellige Zusammenkünfte.

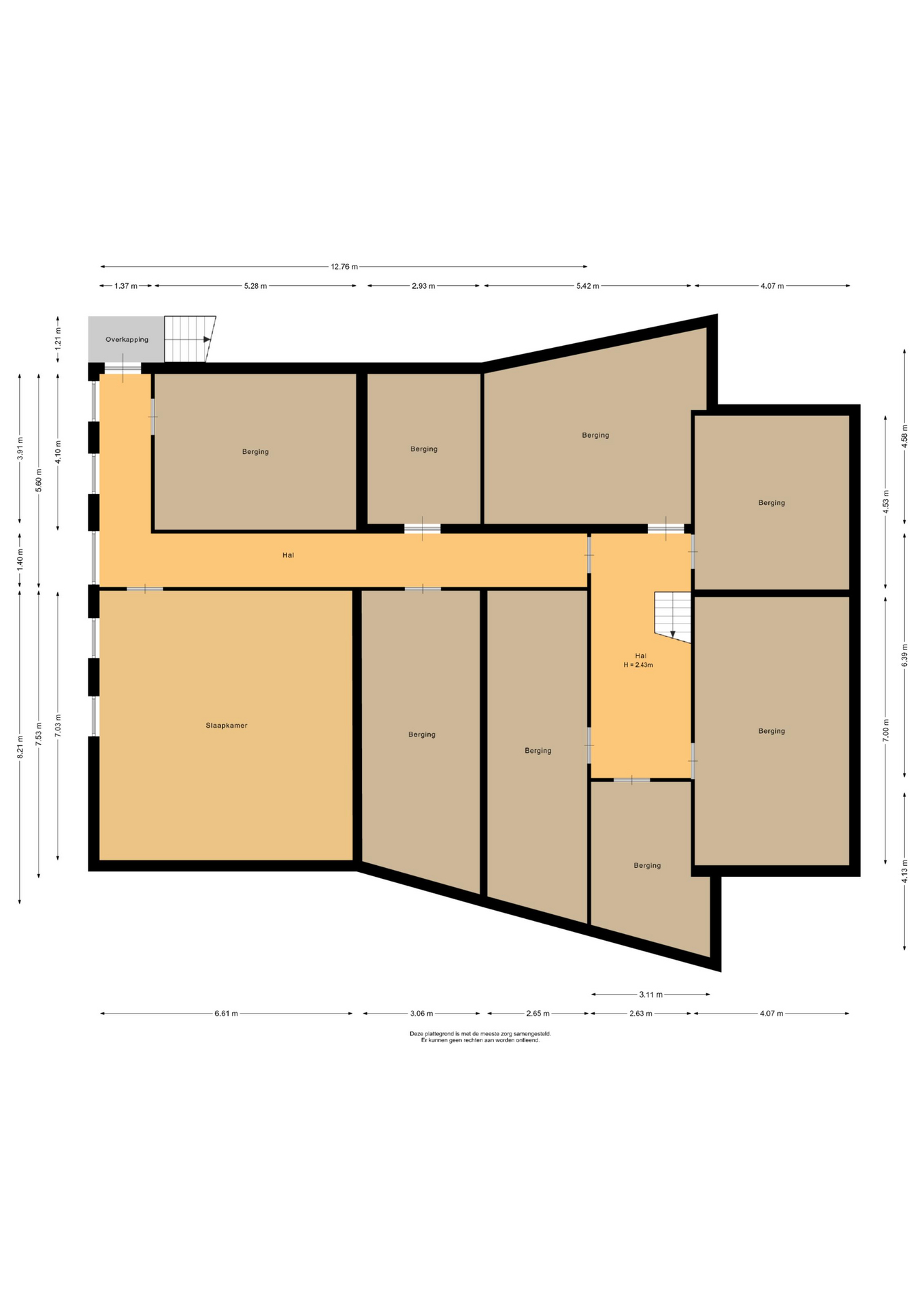
Die Villa am Fluss verfügt über ein außergewöhnliches Untergeschoss mit neun multifunktionalen Räumen. Studios, Fitnessbereiche, private Büros oder ruhige Rückzugsorte – diese Räume passen sich den Anforderungen modernen Wohnens flexibel an und bieten viel Stauraum und Privatsphäre.

Nachhaltiges Design prägt jedes Detail des Hauses: Ein Energieausweis der Klasse A, eine Biomasse-Anlage, eine effiziente Mitsubishi Luft-Luft-Wärmepumpe sowie ein Elektroboiler sorgen für komfortables Wohnen bei geringen Betriebskosten. Teilweise Fußbodenheizung und Photovoltaikanlagen unterstreichen die Umweltfreundlichkeit zusätzlich.

In einem ruhigen, grünen Viertel gelegen, vereint die Villa Privatsphäre und hervorragende Erreichbarkeit – Rotterdam erreichen Sie mit dem Auto in nur 20 Minuten. Schulen, Einkaufsmöglichkeiten und Naturpfade befinden sich in unmittelbarer Nähe. Krimpen aan den IJssel bewahrt sich seinen dörflichen Charme und bietet zugleich schnelle Anbindungen an das urbane Leben. Diese exklusive Villa zum Verkauf in Krimpen aan den IJssel ist ideal für alle, die Rückzugsort und gute Erreichbarkeit gleichermaßen schätzen – hier beginnt jeder Tag im ruhigen Licht am Flussufer.

Entdecken Sie Krimpen Aan Den Ijssel mit Baerz, Ihrem vertrauenswürdigen persönlichen Immobilienfinder und Berater

Die Diskretion des Marktes, die Vielzahl an Off-Market-Chancen und spezielle lokale Gepflogenheiten machen einen erfahrenen Berater unersetzlich. Experten verschaffen Zugang zu Privatangeboten, koordinieren Verhandlungen mit lokalen Verkäufern und unterstützen internationale Käufer bei rechtlichen, regulativen und kulturellen Fragen. Kompetente Begleitung gewährleistet einen reibungslosen Ablauf – vom Kauf bis zur Verwaltung.

Häufige Fallstricke vermeiden

Internationale Käufer verlieren oft wertvolle Zeit, weil sie sich durch doppelte, veraltete oder irreführende Online-Angebote kämpfen müssen – besonders da fast 30% aller Luxusimmobilien überhaupt nicht auf dem Markt erscheinen.
Makler des Verkäufers vertreten die Interessen des Verkäufers, nicht Ihre, und schon eine einfache Anfrage kann dazu führen, dass eine Agentur Sie ohne Ihre Zustimmung als deren „Kunden“ registriert.
Mit Baerz Property Finders & Advisors umgehen Sie all diese Fallstricke vollständig.
Wir handeln ausschließlich in Ihrem Interesse, bieten unabhängige Vertretung, transparente Beratung und Zugang zu jedem verfügbaren Objekt – einschließlich privater und off-market Angebote, die andere nie zu sehen bekommen.

Neugierig, wie Sie Ihren eigenen Personal Property Advisor sichern können? Kontaktieren Sie uns, um zu erfahren, wie wir Ihre Interessen vertreten und Ihnen den gesamten Markt öffnen können.

Merkmale

Solarmodule
Klimaanlage
Eigentumsübertragung
Verkaufspreis
€ 1.580.000 k.k.
Status
beschikbaar
Annahme
in overleg
Bau
Art des Hauses
Villa
Gebäudetyp
vrijstaande woning
Bauzeitraum
2001
Energieausweis
A
Dachtyp
samengesteld dak
Schlafzimmer
9
Badezimmer
3
Flächen und Volumen
Wohnbereich
618 m2
Andere Innenräume
26 m2
Außenbereich am Gebäude
214 m2
Externer Lagerraum
5 m2
Volumen in Kubikmetern
2074 m3
Grundstücksgröße
677 m2
Einrichtungen
Mechanische ventilatie
Airconditioning
Stoomcabine
Rookkanaal
Schuifpui
Zonnepanelen
Natuurlijke ventilatie
Vrij uitzicht
Aan vaarwater
Baerz & Co Property Brochure

Broschüre

Videos

Van Herk Makelaars Excellent

Oudehoofdplein 4
3011 TM Rotterdam

xbek@vanherk.nl
+31 102581855

www.vanherk.nl/excellent/

Information / Besichtigungsanfrage

Xandra Bek profile image
Xandra Bek
Register makelaar - taxateur