Ons kantoor is lid van Baerz & Co Luxury Homes; een internationaal platform dat exclusieve woningmakelaars met elkaar verbindt. Neem contact op met ons secretariaat voor meer informatie over het landelijke aanbod, waarvan u hieronder een selectie kunt bekijken.

KAAG
Emmalaan 3 - 2159 LP
Die Niederlande

Frits Wilbrink profile image
Frits Wilbrink
Real estate agent
€1,395,000 k.k.
Wohnbereich
184m2
Grundstücksgröße
535m2
Schlafzimmer
3

Beschreibung

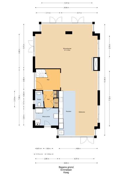
Das Leben am Wasser der Villa Kaag Island definiert Ruhe neu, indem es Abgeschiedenheit, Wasser und erlesenen Komfort auf einem seltenen Inselgrundstück von 535 m² vereint. Diese im Jahr 2000 erbaute Villa mit einer Wohnfläche von 184 m² liegt direkt am Ufer der Kagerplassen, wo jeder Tag mit dem Plätschern des Wassers beginnt und mit sanftem Sonnenlicht über einem privaten Steg endet. Bereits beim Betreten der großzügigen Diele mit offenem Loftraum und praktischer Garderobennische spürt man Großzügigkeit und Helligkeit.

Das Hauptwohnzimmer, das von einem Gaskamin beheizt und mit klassischen Zierprofilen versehen ist, bietet durch Erkerfenster und bodentiefe Doppeltüren einen atemberaubenden Blick auf das Wasser und führt nahtlos auf eine sonnenverwöhnte Terrasse über dem Wasser.

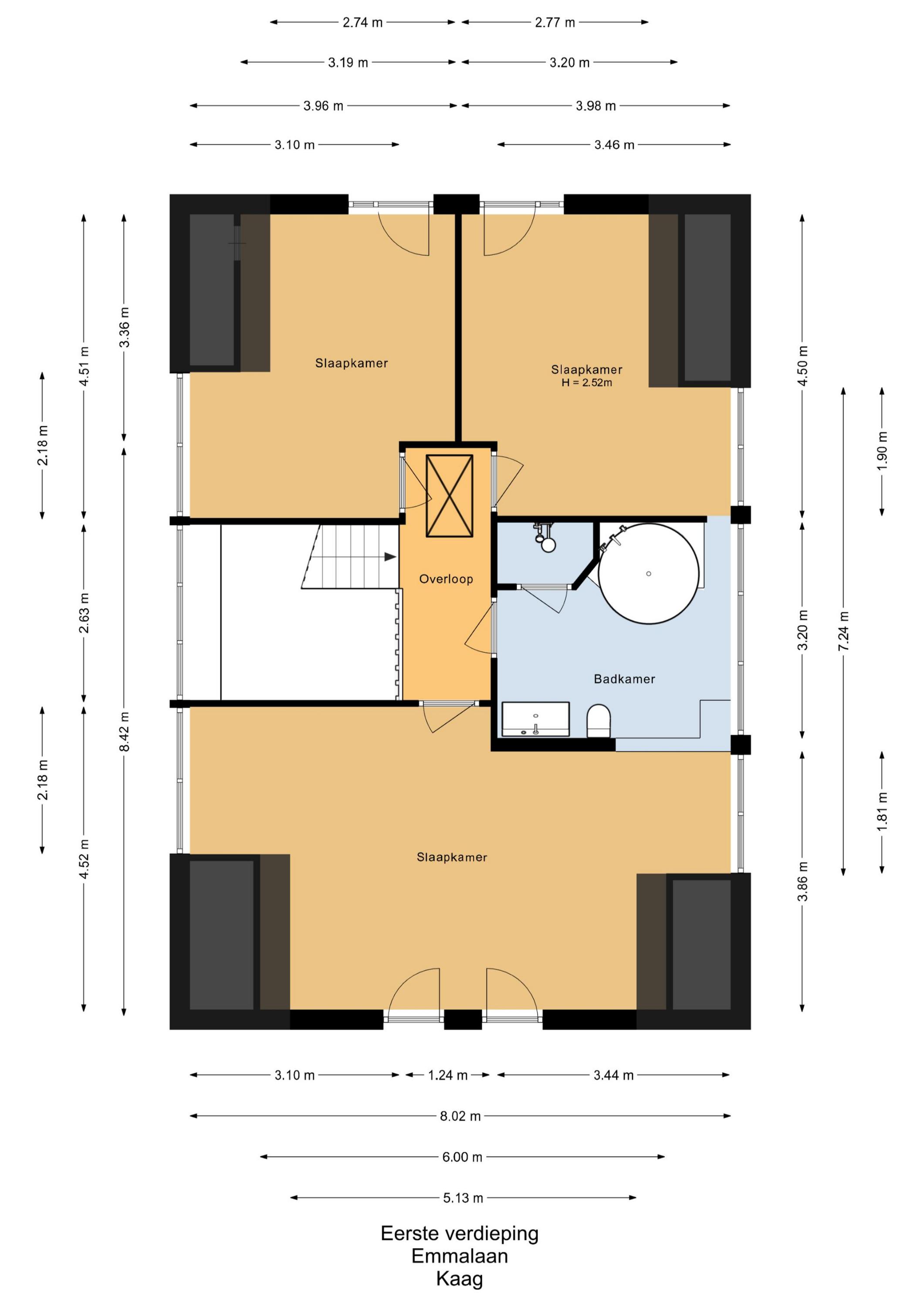
Die Küche, sowohl für gesellige Stunden als auch für ruhige Morgen gestaltet, öffnet sich zur Deckterrasse, während ein separater Raum Platz für die Waschküche, Zentralheizung und Abstellmöglichkeiten bietet. Im Obergeschoss befinden sich drei großzügige Schlafzimmer, die jeweils mit Dachgauben, französischen Balkonen und Zugang zu einem luxuriösen Badezimmer mit Badewanne und Jacuzzi ausgestattet sind. Herausragende Dämmung, mechanische Belüftung und Energieklasse C sorgen das ganze Jahr über für Komfort und Ruhe.

Außen unterstreichen ein gepflegter Garten und großzügige Parkmöglichkeiten eine diskrete Eleganz. Der eigene Steg der Villa lädt zu entspannten Bootsausflügen über die Seen ein, während Leiden, Amsterdam, Den Haag und Haarlem bequem erreichbar bleiben. Diese Villa auf Kaag Island verkörpert den seltenen Rhythmus des Insellebens, bei dem Privatsphäre und Verbundenheit ein außergewöhnliches Lebensgefühl schaffen. Wer eine Luxusvilla auf Kaag zum Verkauf sucht, findet hier das Wesen ruhiger Wasserlage und zeitloser Architektur.

Entdecken Sie Kaag mit Baerz, Ihrem vertrauenswürdigen persönlichen Immobilienfinder und Berater

Diskrete Vermittlung & Off-Market-ZugangDer Kauf einer Spitzenimmobilie in Kaag erfordert Erfahrung mit einem von Diskretion und limitiertem Bestand geprägten Markt. Kompetente Berater verschaffen Zugang zu nicht öffentlich gelisteten Objekten, bringen Verhandlungsgeschick ein und schützen gezielt die Interessen ihrer Klienten. Ihre Expertise umfasst Preistendenzen, regulatorische Aspekte und komplexe Eigentumsverhältnisse. Die Zusammenarbeit mit etablierten Fachleuten ist der Schlüssel zum Erfolg in dieser vertraulichen Enklave.

Häufige Fallstricke vermeiden

Internationale Käufer verlieren oft wertvolle Zeit, weil sie sich durch doppelte, veraltete oder irreführende Online-Angebote kämpfen müssen – besonders da fast 30% aller Luxusimmobilien überhaupt nicht auf dem Markt erscheinen.
Makler des Verkäufers vertreten die Interessen des Verkäufers, nicht Ihre, und schon eine einfache Anfrage kann dazu führen, dass eine Agentur Sie ohne Ihre Zustimmung als deren „Kunden“ registriert.
Mit Baerz Property Finders & Advisors umgehen Sie all diese Fallstricke vollständig.
Wir handeln ausschließlich in Ihrem Interesse, bieten unabhängige Vertretung, transparente Beratung und Zugang zu jedem verfügbaren Objekt – einschließlich privater und off-market Angebote, die andere nie zu sehen bekommen.

Neugierig, wie Sie Ihren eigenen Personal Property Advisor sichern können? Kontaktieren Sie uns, um zu erfahren, wie wir Ihre Interessen vertreten und Ihnen den gesamten Markt öffnen können.

Merkmale

Klimaanlage
Eigentumsübertragung
Verkaufspreis
€ 1.395.000 k.k.
Status
beschikbaar
Annahme
in overleg
Bau
Art des Hauses
Villa
Gebäudetyp
vrijstaande woning
Bauzeitraum
2000
Energieausweis
C
Dachtyp
zadeldak
Schlafzimmer
3
Badezimmer
1
Flächen und Volumen
Wohnbereich
184 m2
Andere Innenräume
0 m2
Volumen in Kubikmetern
655 m3
Grundstücksgröße
535 m2
Einrichtungen
Mechanische ventilatie
Airconditioning
Jacuzzi
Rookkanaal
Schuifpui
Frans balkon
Glasvezel kabel
Aan water
Aan rustige weg
In woonwijk
Beschutte ligging
Aan vaarwater
Baerz & Co Property Brochure

Broschüre

Videos

Grundrisse

Wilbrink & v.d. Vlugt Makelaars

Heereweg 231
2161 BG Lisse

info@wilbrinkvandervlugt.nl
+31 252 41 90 49

www.onsaanbod.nl

Information / Besichtigungsanfrage

Frits Wilbrink profile image
Frits Wilbrink
Real estate agent